1 300 000 ₽/мес

1 300 ₽ за м²/мес.

1 000 м²
Площадь
4/7
Этаж

Поделиться

Добавить в избранное

ВАЖНО! БЕЗ КОМИССИИ.
Предложение от собственника.
Звоните.
Сообщения не читаем.

Просторное помещение под любой вид деятельности с отельным входом , светлоес ремонтом.
Доступ 24/7.Возможно частичная аренда
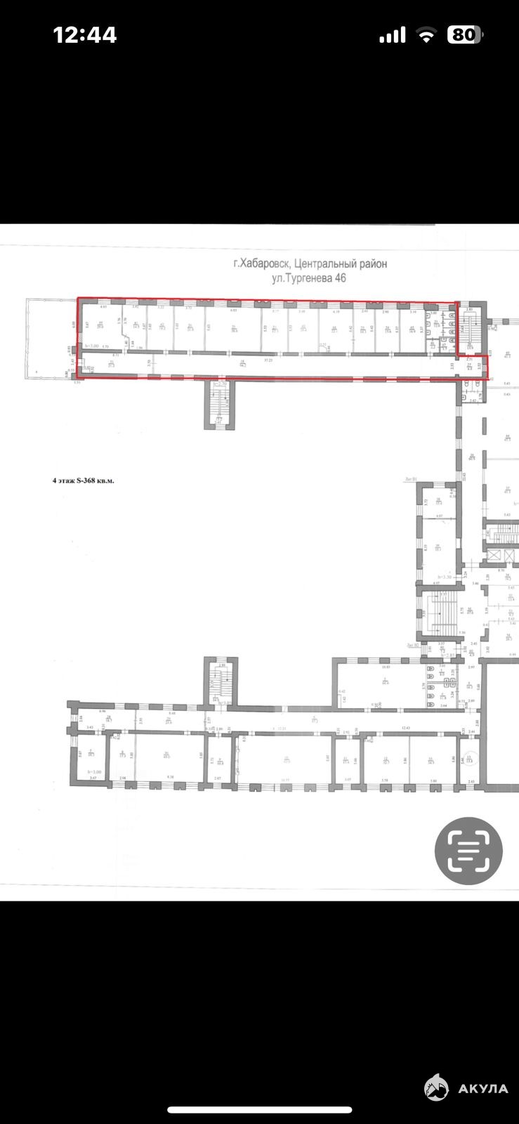
Офисное помещение, в Центральном районе по улице: Тургенева.
Помещение находится на 4 – м этаже в (7) - этажном здании.

Количество входов - 1.
Отдельный с улицы.
В помещении есть подвод воды.
Состояние хорошее.
Материал стен - кирпично- монолитный.
Окна - пластиковые.
Полы - керамогранит.
Потолок - натяжные.
Высота потолков - 4. количество сан. узлов – 1.
Канализация - централизованная.
Система отопления - централизованное.
Не

Дата обновления: 12 октября 2025