41 000 ₽/мес

1 109 ₽ за м²/мес.

37 м²
Площадь
2/3
Этаж

Поделиться

Добавить в избранное

ВАЖНО! БЕЗ КОМИССИИ.
Предложение от собственника.
Звоните.
Сообщения не читаем.

В Аренду Офисное помещение в центре, с парковкой светлое с ремонтом, кабинетная планировка, кондиционеры, интернет.
Охрана, доступ 24/7
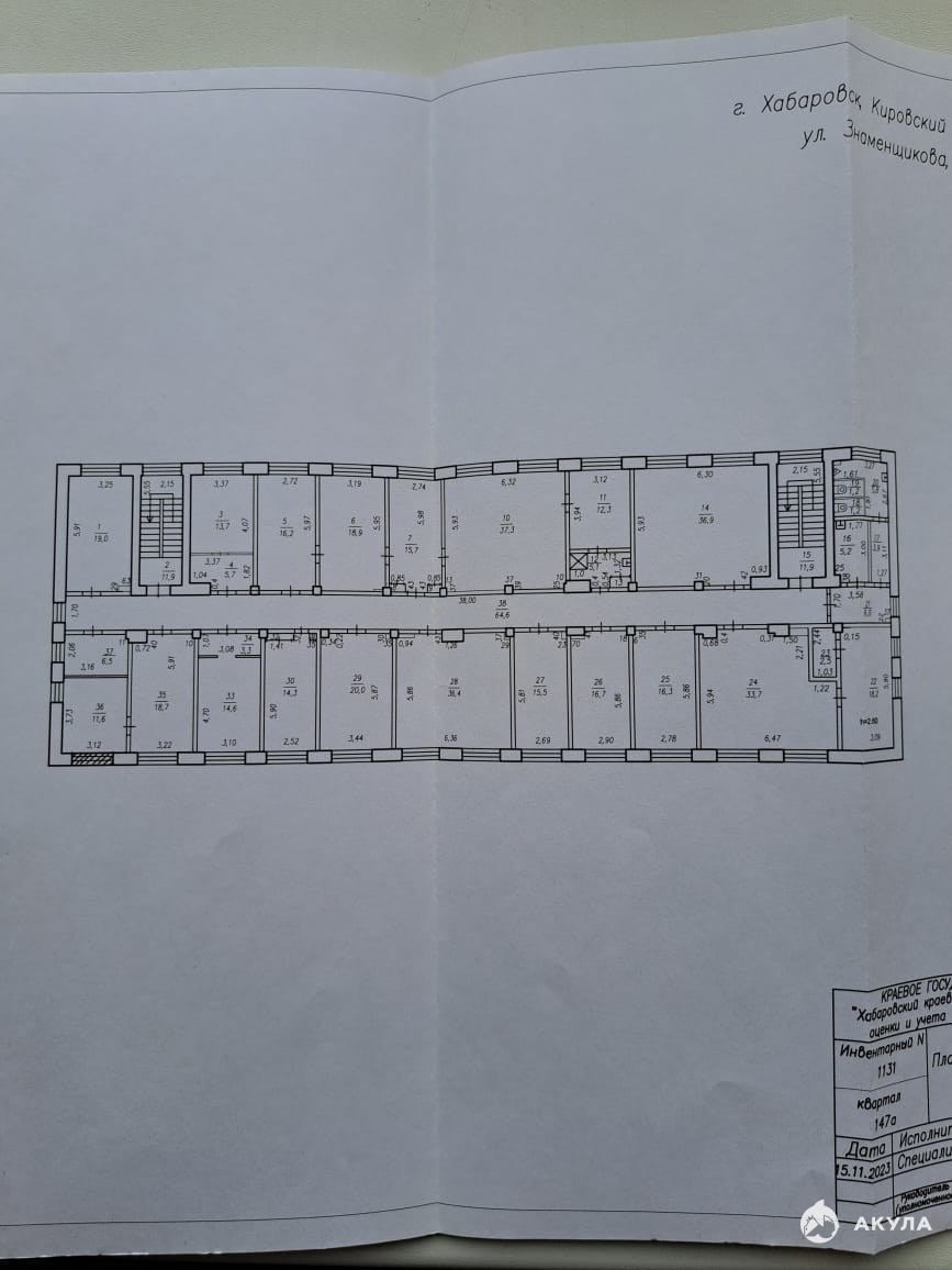
Офисное помещение, в Центральном районе по улице: Знаменщикова.
Рядом улицы: Серышева, Джамбула, Советская, Яшина, Шеронова, Льва Толстого, Дзержинского.
Помещение находится на 2 – м этаже в (3) - этажном здании.

Количество входов - 3.
Отдельный с улицы, Общий, Отдельный со двора.
В помещении есть подвод воды.
Состояние хорошее.
Материал стен - кирпичный.
Окна - пластиковые.
Полы - керамогранит.
Потолок - армстронг.
Высота потолков - 2, 7.
Сан. узел раздельный. количество сан. узлов – 3.
Пешком до остановки - 3 мин.
Канализация - централизованная.
Вентиляция - естественная.
Система отопления - централизованное.
Не

Дата обновления: 16 ноября 2025